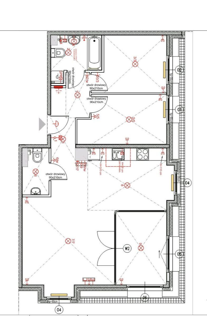
Mieszkanie na sprzedaż, Gdańsk Zaspa
- Powierzchnia:66 m2
- Pokoje:3
- Piętro:4 z 5
- Rok budowy:2026
- Numer oferty:CP1173373
Mieszkanie na sprzedaż, Gdańsk Zaspa
Mieszkanie na sprzedaż, Gdynia Karwiny, Buraczana
Mieszkanie na sprzedaż, Rumia Janowo, Błoń Janowskich
Działka (Usługowo-mieszkaniowa) na sprzedaż, Gdańsk Sobieszewo
Mieszkanie na sprzedaż, Gdańsk Aniołki, Mikołaja Kopernika
Mieszkanie na sprzedaż, Gdynia Cisowa, Chylońska